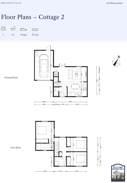
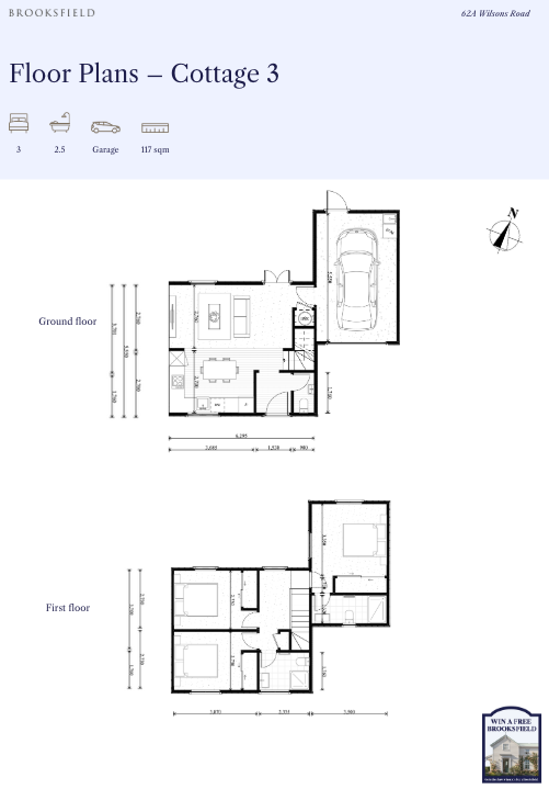
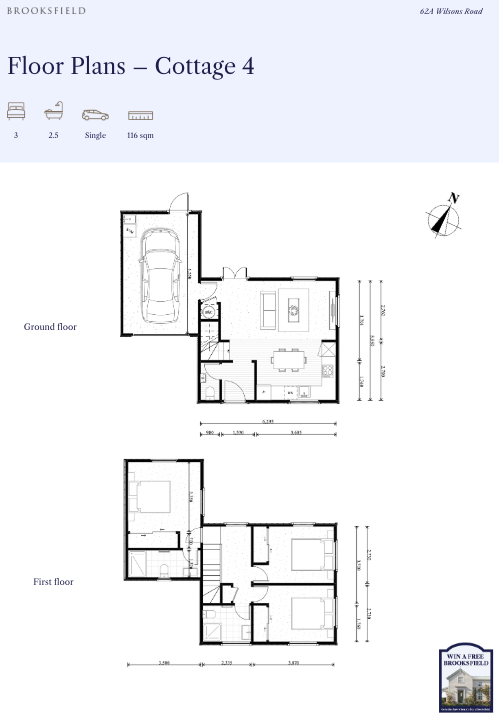
62A Wilsons Road, Christchurch
62A WIlsons Road, four Cottage Revival Homes with private courtyards close to popular amenities
$850,000
{"amenities":[{"icon":"restaurant","description":"Vesuvio - 6 minute walk","lat":"-43.52018695571661","lng":"172.62811658370822"},{"icon":"restaurant","description":"Strawberry Fare - 9 minute walk","lat":"-43.52032083482126","lng":"172.62619528370817"},{"icon":"park","description":"Abberley Park - 9 minute walk","lat":"-43.51354417712305","lng":"172.6303740953479"},{"icon":"shopping-mall","description":"Merivale Mall - 11 minute walk","lat":"-43.51273055568097","lng":"172.62068486836387"},{"icon":"park","description":"Hagley Park","lat":"-43.5220960117859","lng":"172.62550194022424"},{"icon":"city-hall","description":"Christchurch Central City - 8 minute bike ride","lat":"-43.533085","lng":"172.635391"},{"icon":"airport","description":"Christchurch International Airport - 20 minute drive","lat":"-43.487755","lng":"172.537199"}],"amenities_description":"These Brooksfield homes are located in Onslow Street, a short walk to Merivale Mall, Hagley Park, and minutes from the city centre public transport links, and local amenities.","google_map":{"lat":"-43.517098468976414","lng":"172.62681069719997"}}